Watch our Auctions Live!
Watch our Auctions Live!

The Balance of the Bays

116a Coates Avenue

4

3

2

4

3

2


share

Marketed by Mike Zelcer

The Balance of the Bays


116a Coates Avenue

Orakei, Auckland

Auction at 411 Remuera Road, Remuera (Unless Sold Prior) on 05.03.2026 at 11:00 AM

Marketed by Mike Zelcer

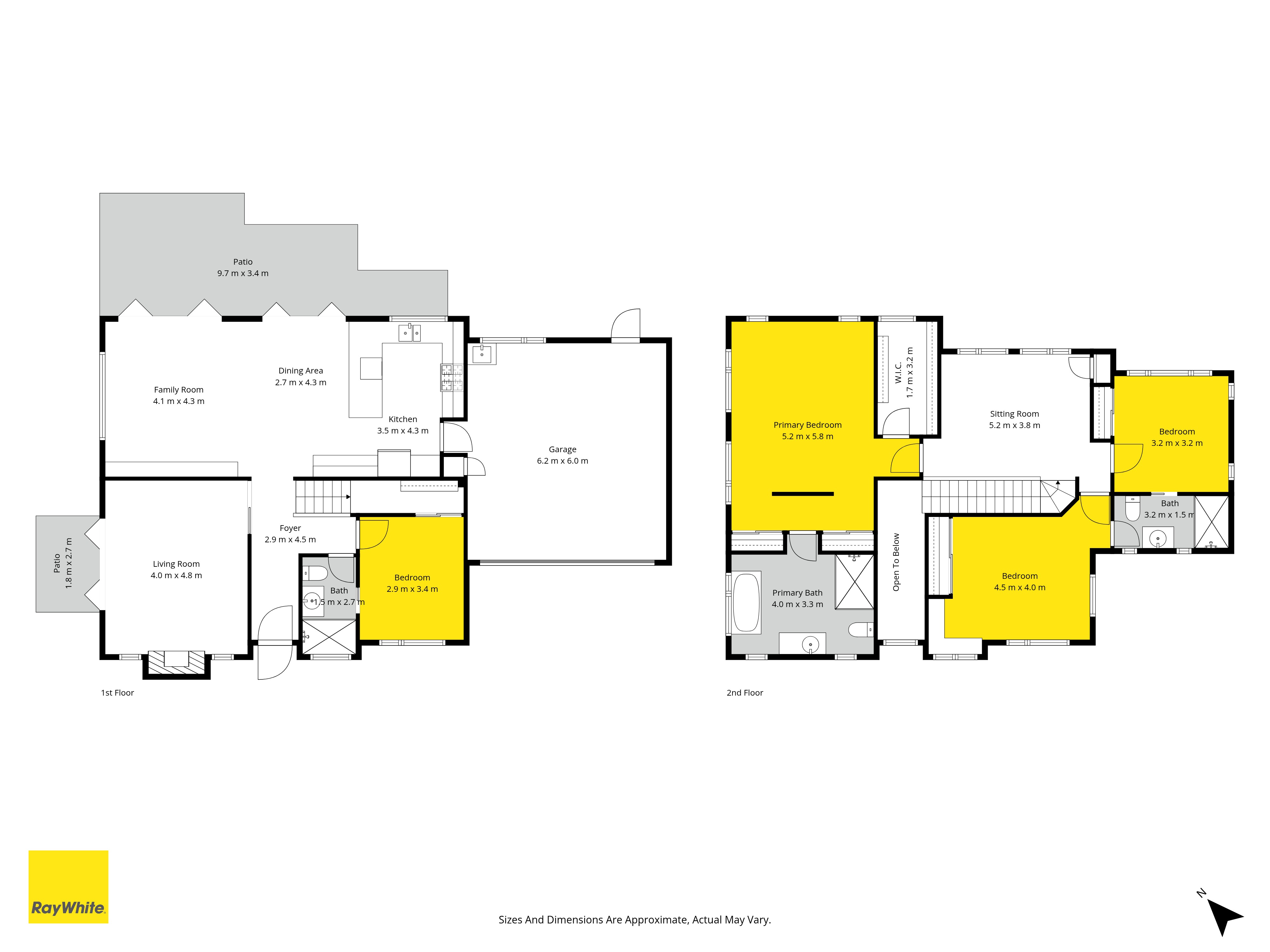
Behind secure electric gates, in one of Orakei's most desirable pockets, this home strikes a rare balance: private yet inviting, sophisticated yet effortless. This is a home that effortlessly blends lifestyle and convenience. Construction: Weatherboard and rendered over brick.

• Sunlight spills through every corner, and spaces are designed to adapt - the layout reveals its thoughtful flow. A formal lounge with a feature gas fire offers a refined retreat, while the open-plan kitchen and living area is the heartbeat of the home - bright, expansive, and ready for gatherings, whether it's a casual breakfast or an evening with friends. • Upstairs, a second lounge provides the perfect space for teens, movie nights, or a flexible home office, making everyday living feel effortless. • Four generous bedrooms offer comfort and versatility. A sanctuary-like primary suite complete with a deep-set bathtub that invites relaxation, while two further bedrooms share a Jack-and-Jill ensuite. A ground-floor bedroom is ideal for guests or extended family, complemented by a full bathroom that doubles as a convenient powder room. • Outside, living continues with low-maintenance gardens and tiger turf, designed for summer evenings, weekend barbecues, or quiet coffee moments in the sun. North-facing and bathed in natural light, the home maximises both warmth and privacy. • Location adds another layer of appeal. Eastridge Shopping Centre, transport links, and Auckland's eastern bays are all within easy reach - yet behind the gates, the city feels a world away.

For families, professionals, or downsizers seeking a home that's as adaptable as it is inviting, this Orākei address delivers a lifestyle few can match - timeless, sun-filled, and ready to be enjoyed from day one.

• Fee simple (freehold)

• Floor Area: 234sqm (approx.)

• Land Area: 441sqm more or less

• Council Rates: $7,565.71 p/a (2025/26)

• CV: $2,775,000 (2024)

• School Zones: Orakei primary, Selwyn College, Baradene College

• Residential - Mixed Housing Urban Zone

• Rental Appraisal: $1,450 - $1,500 per week

We collaborate with every agency so if you have buyers who may be interested please call Mike today. Proudly Marketed by Mike Zelcer 021 934 240

Inspection times

14 Feb 2:00PM - 2:30PM

15 Feb 2:00PM - 2:30PM

21 Feb 2:00PM - 2:30PM

22 Feb 2:00PM - 2:30PM

28 Feb 2:00PM - 2:30PM

01 Mar 2:00PM - 2:30PM

Auction time

05 Mar 11:00AM

411 Remuera Road, Remuera (Unless Sold Prior)

Property Details

Suburb stats

Property ID ORK31818

Category
House
Status
Current
Bedrooms
4
Bathrooms
3
Garaging
2
Land
441 m²


Local Schools

* While every effort has been made to ensure the information displayed is accurate, please check details directly with the school before making decisions based on this information.

Primary
Intermediate
Secondary
Orakei School - 220m away
Years 1-8
Co-ed
Grace Street
09 521 0657


Orakei School - 220m away
Years 1-8
Co-ed
Grace Street
09 521 0657


Baradene College - 1.8km away
Year 7-15
Girls
237 Victoria Avenue
09 524 6019


Baradene College - 1.8km away
Year 7-15
Girls
237 Victoria Avenue
09 524 6019


Selwyn College - 1.9km away
Year 9-15
Co-ed
Kohimarama Road
09 521 9610



Show on map

Make an Appointment

Send an enquiry about this property to the agent


Mike Zelcer


Licensee Salesperson

Mobile: 021 934 240

Phone: (09) 520 6000


You May Also Like

Orakei, 27A Tautari Street

27A Tautari Street


4

2

2

Orakei, 116a Coates Avenue

116a Coates Avenue


4

3

2

Orakei, 3/7 Ngake Street

3/7 Ngake Street


3

2

2

Orakei, 45A Tautari Street

45A Tautari Street


4

2

4

Suburb Stats

Orakei


Median sale price in December 2025

$1,772,000

27% last month
19% same time as
last year

Monthly Trend

Total Sales in December 2025

13% last month
7 sales
133% same time as
last year

Monthly Sales